Badezimmer, Sauna
Bayreuth, Deutschland
In diesem privaten Apartment in Bayreuth realisierten wir ein ganzheitliches Interior-Konzept. Unser Leistungsumfang umfasste die Gestaltung und Materialauswahl, sämtliche Fliesenarbeiten sowie die Installation der Sanitärobjekte.
Besonderes Augenmerk legten wir auf den Einsatz natürlicher Materialien und einer harmonischen Farbgestaltung, die dem Badezimmer und dem Wellnessbereich eine warme, einladende und zugleich moderne Atmosphäre verleihen.
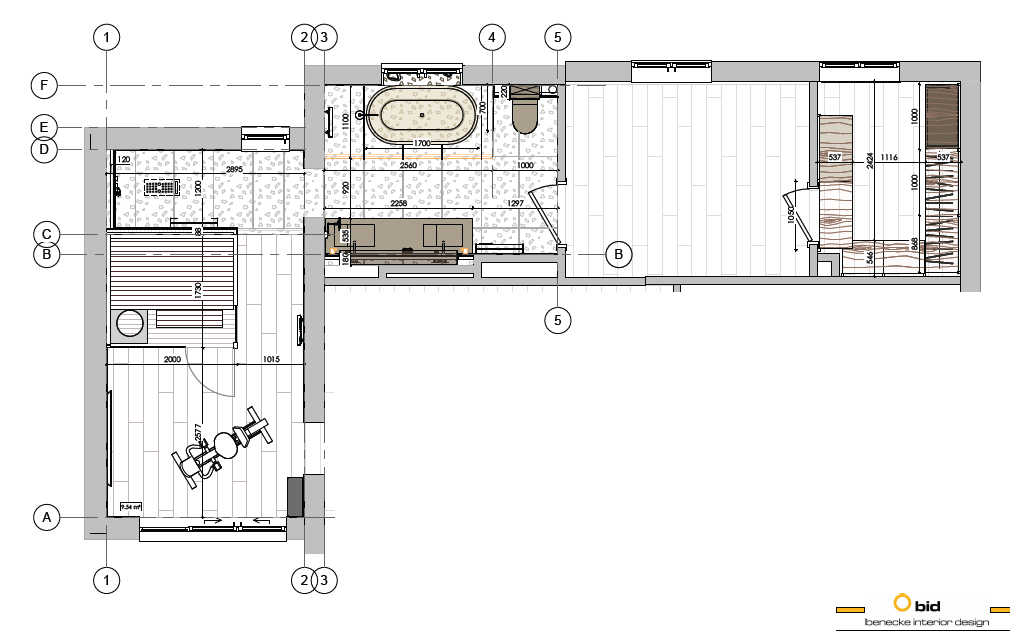
In einem privaten Apartment in Bayreuth haben wir die komplette Gestaltung des Badezimmers und des Wellnessbereichs übernommen. Der Projektumfang umfasste die Entwicklung des Designkonzepts, die Erstellung von Grundrissen, Schnitten und detaillierten Plänen sowie die Ausarbeitung fotorealistischer 3D-Visualisierungen.
Badezimmer, Sauna
Bayreuth, Deutschland
In diesem privaten Apartment in Bayreuth realisierten wir ein ganzheitliches Interior-Konzept. Unser Leistungsumfang umfasste die Gestaltung und Materialauswahl, sämtliche Fliesenarbeiten sowie die Installation der Sanitärobjekte.
Besonderes Augenmerk legten wir auf den Einsatz natürlicher Materialien und einer harmonischen Farbgestaltung, die dem Badezimmer und dem Wellnessbereich eine warme, einladende und zugleich moderne Atmosphäre verleihen.
In einem privaten Apartment in Bayreuth haben wir die komplette Gestaltung des Badezimmers und des Wellnessbereichs übernommen. Der Projektumfang umfasste die Entwicklung des Designkonzepts, die Erstellung von Grundrissen, Schnitten und detaillierten Plänen sowie die Ausarbeitung fotorealistischer 3D-Visualisierungen.
Prinzip
Durch die Kombination aus präziser Planung, durchdachter Materialwahl und handwerklicher Umsetzung entstand ein Badezimmer- und Wellnessbereich, der Funktionalität und ästhetischen Anspruch auf höchstem Niveau vereint.

Ein besonderes Highlight ist die maßgefertigte Sauna der Firma Effe, die als elegante Lösung harmonisch in den Wellnessbereich integriert wurde und den Raum zu einer exklusiven Rückzugs- und Erholungszone macht.
Neben dem Badezimmer mit hochwertiger Ausstattung und einer klaren, modernen Formensprache planten wir auch einen kompakten Fitnessraum, der die private Wohlfühl- und Gesundheitszone perfekt ergänzt.
Die Hersteller von Projekt:
Effe — Sauna
Antonio Lupi — Badausstattung
Antonio Lupi — Schränke
Occhio — Licht
Marazzi — Fliesen
luiz – Textil
Die restlichen Möbel wurde nach den eigenen Entwurfen
des Designers hergestellt (Benecke interior design)
Luitpoldplatz 10
D-95444 Bayreuth
Germany
Tel. +49 921 – 789110
Fax. +49 921 – 7891133
Mob. 0171 9912213






